Novogradnja - Dvojček Sinja Gorica

Novogradnja - Dvojček Sinja Gorica

Sodobni videz, kakovostna gradnja in zelo premišljen tloris

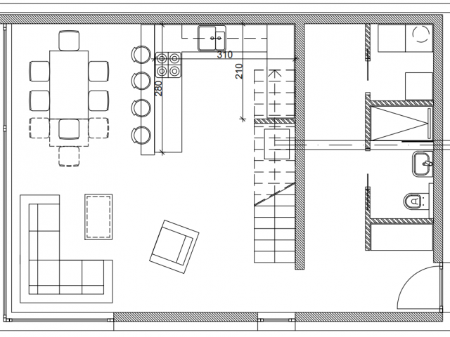
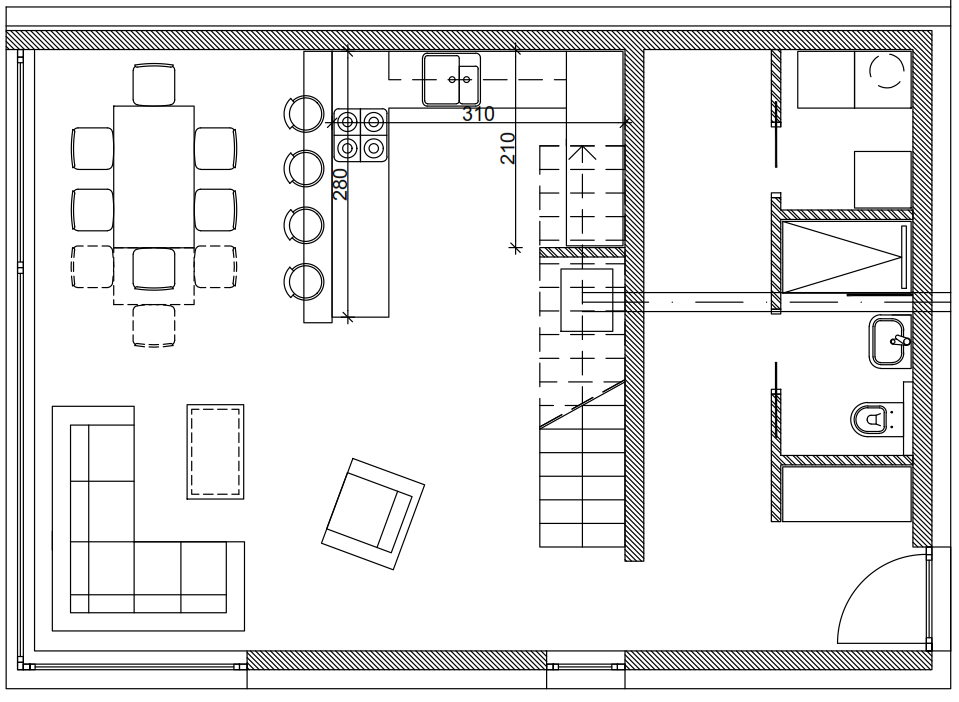
V prijetnem in mirnem naselju v Sinji Gorici na Vrhniki se prodaja polovica modernega dvojčka, zasnovanega po načrtih priznane arhitekturne pisarne Sadar+Vuga. Hiša izstopa po sodobnem videzu, kakovostni gradnji in zelo funkcionalnem tlorisu, ki omogoča udobno bivanje v stiku z naravo.

Hiša ima urejeno pokrito parkirišče za dve vozili in prostorno shrambo. Idejna zasnova pritličja je odprt in svetel bivalni del, kjer se kuhinja, jedilnica in dnevna soba lepo povezujejo v celoto. Pri vhodnem delu so predprostor, kopalnica in utility. Iz dnevnega prostora je izhod v atrij s teraso – idealen kotiček za druženje ali sproščene popoldneve na zraku.

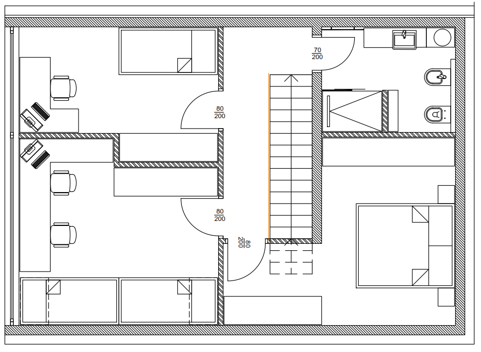
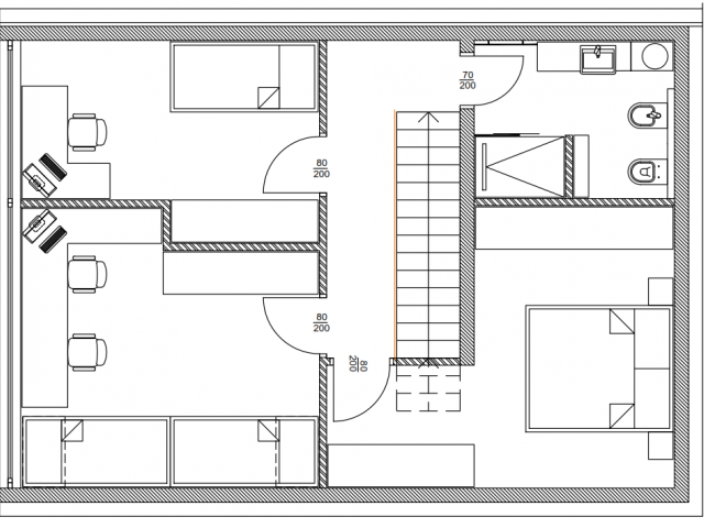
V mansardi so zasnovane tri prostorne spalnice in večja kopalnica. Stropi so visoki, do 4 metre, kar omogoča tudi ureditev galerije po želji – primerno za delovno sobo, igralnico ali kotiček za sprostitev. Vidni leseni tramovi dajejo prostoru poseben občutek topline in udobja.

Gradnja iz kakovostnih materialov (aluminijasta okna, kritino iz eternita) sledi miselnosti o trajnosti in nizkih stroških bivanja. Nepremičnina je trenutno še v gradnji, kar pomeni, da lahko notranjost prilagodite po svojih željah. Dvojček je naprodaj v 3. gradbeni fazi. Naselje ima skupno čistilno napravo, kar dodatno prispeva k trajnostnemu bivanju.

V bližini so šola, vrtec in javni prevoz, do Ljubljane pa je le nekaj minut vožnje. Kljub bližini vse infrastrukture naselje ponuja veliko miru, zasebnosti in občutek povezanosti z naravo.

Neto površina: 120 m2
Nadstrešnica: 35 m2
Število sob: 3
Število kopalnic: 2
Lokacija: Sinja Gorica, Vrhnika
Parcela: 2856/6 k.o., Blatna Brezovica

 

 

Kontakt

Prodajalec: Arhidea d.o.o.
Naslov: Linhartova cesta 13, 1000 Ljubljana
GSM: 041 750 555 - Nataša Berčan
Email: natasa.bercan@arhidea.si